There are very few manufacturers of portable pier-and-beam buildings in America, and, as far as we can tell, only one that builds finished out, ready to plug in buildings. That manufacturer is General Shelters, so it is not an exaggeration to say that the Cedar View III we have on location is the largest portable building of its kind in America.
The decades of experience they have culminates in this cabin. They know how to build wood frame buildings that can be delivered, blocked and levelled, without compromising the integrity of the structure.
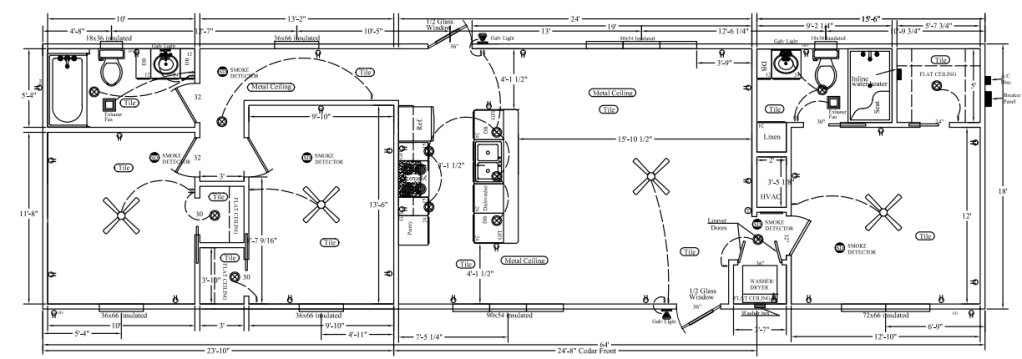
The following video is an annotated walk-through of the custom Cedar View III we have currently on location at Trees of Central Texas. Astute observers will note that the actual model we commissioned has a few changes from the basic stock model. Here is the stock floor plan:

Of course, feel free to visit us for a tour of whatever cabins we have on site (unsure when you will be reading this and we will not update this post), as a Platinum Dealer for General Shelters we will always have something that illustrates the quality of their products.


Leave a comment